Conjunto Jocotepec
Año: 2025
Lugar: Jalisco
Estatus: En Proceso de Construcción
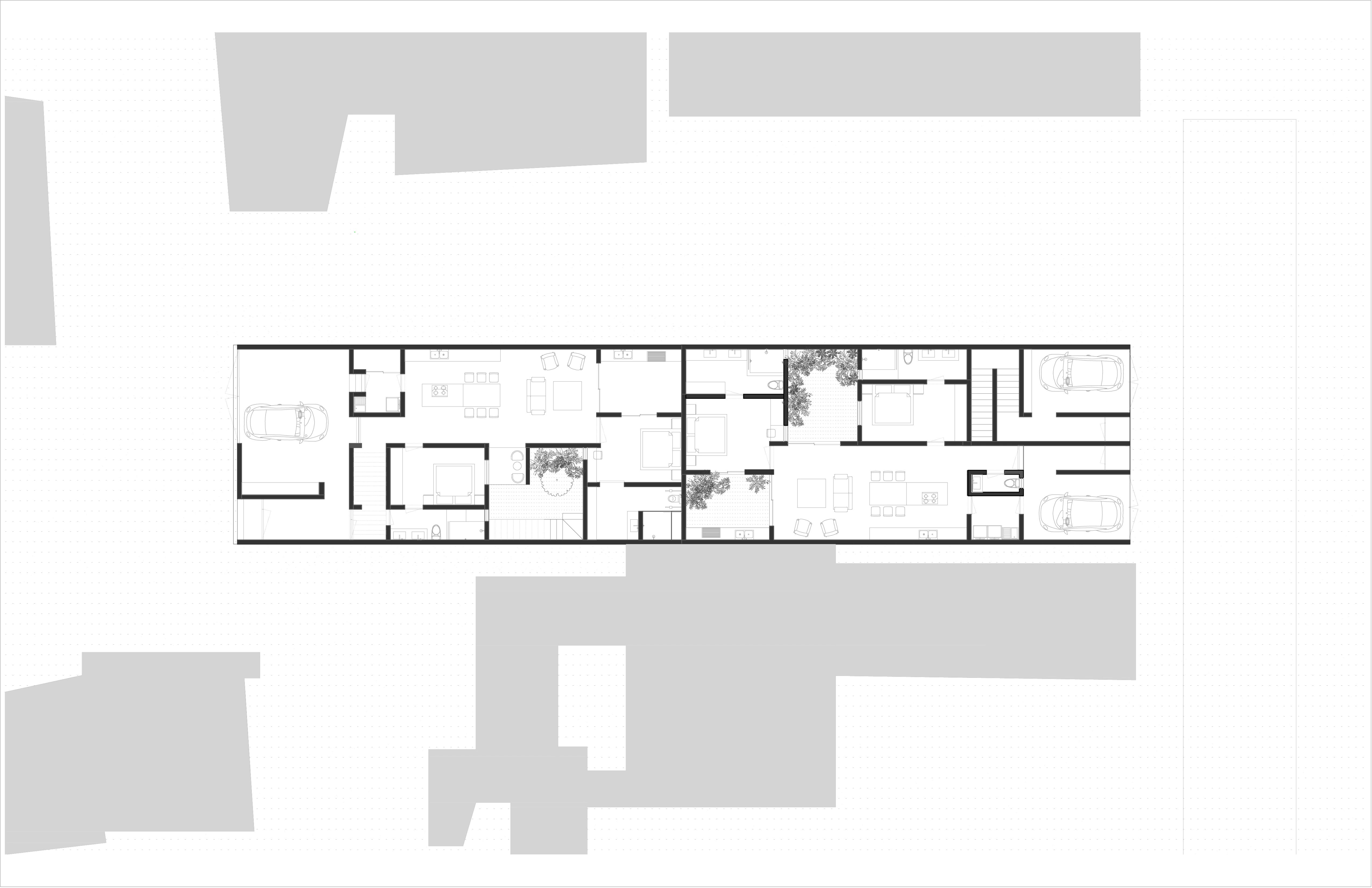
El proyecto, ubicado en Jocotepec, en el estado de Jalisco, México. Se desarrolló en un terreno rectangular dividido en dos áreas: una casa de una sola planta diseñada para un propietario que se desplaza en silla de ruedas, con accesibilidad total y conexión fluida con el exterior, y una serie de departamentos tipo dúplex. Debido a las colindancias laterales, se incorporaron patios interiores que favorecen la iluminación y ventilación natural, generando espacios habitables más confortables y eficientes dentro de un conjunto que equilibra funcionalidad, privacidad.





