Casa Tecomatlán
Año: 2025
Lugar: Estado de México
Estatus: En Proceso de Construcción
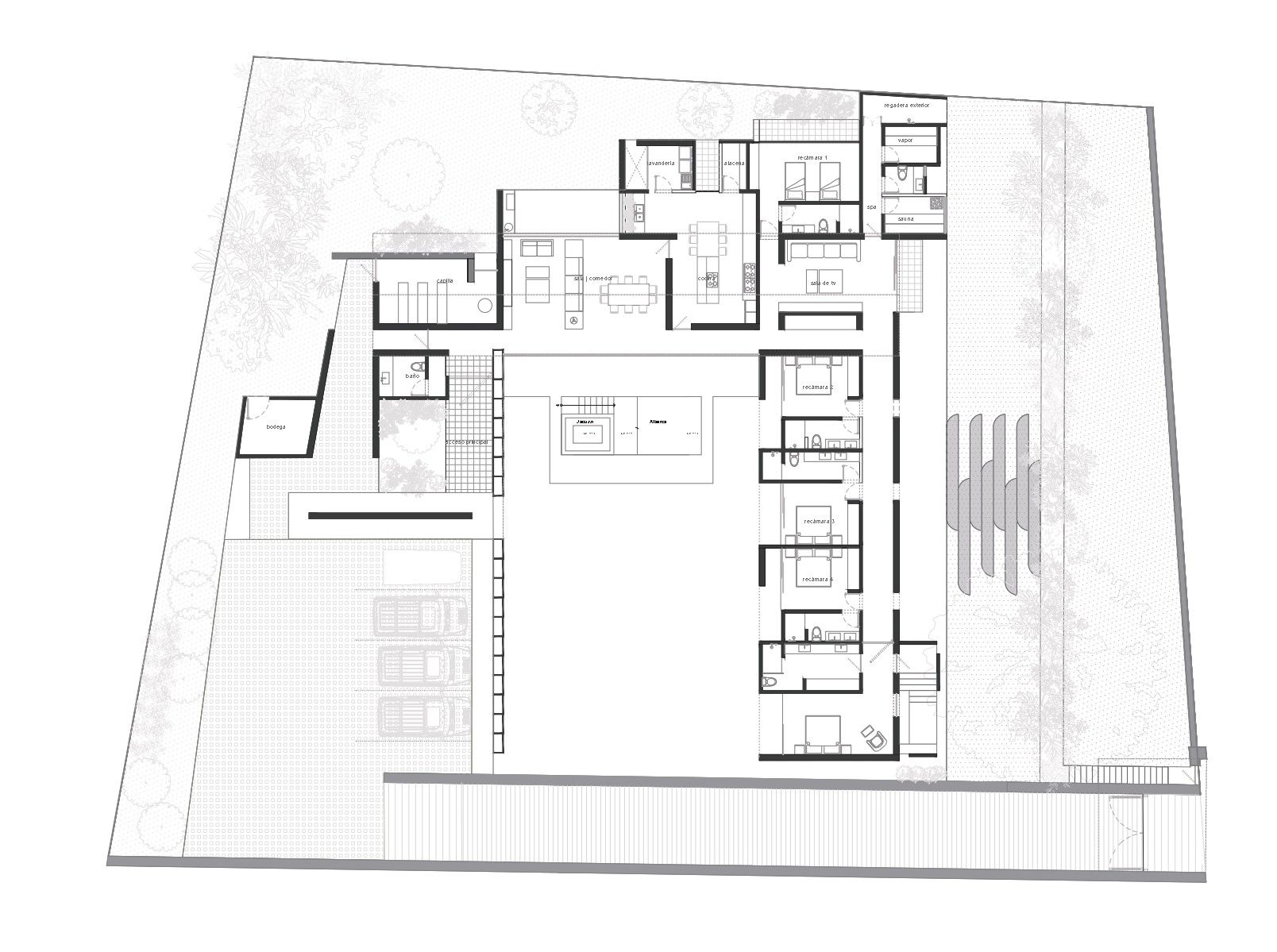
CASA T es un proyecto de vivienda, una residencia de descanso ubicada en San Miguel Tecomatlán Estado De México, para una familia grande con un programa para la recreación familiar. El terreno tiene una diferencia de 9mts de nivel de calle al fondo del terreno. lo que genera una gran privacidad. El terreno tiene 2 grandes árboles que filtran la luz y los rayos del sol.






